黑白经典与生态趣味
“大熊猫科普馆”建筑方案设计

一、 项目背景
大熊猫科普馆项目位于陕西佛坪熊猫谷AAAA级景区内,紧邻大熊猫野外驯化基地,大熊猫科普馆是以大熊猫野外驯化基地为基础的大熊猫生物类种科普文化的延伸,也是培养游客认知“绿色生态、高度保护、生物演化、国宝文化”等核心概念的文化空间,是大熊猫参观游览的基础前提。
二、场地现状
熊猫科普馆地块位于通往大熊猫野外驯化基地的必经之路,地块狭长,总用地面积4500㎡,地块北部靠山体,南侧邻溪流,自然环境优美。
三、设计构思
大熊猫科普馆设计围绕多重功能的复合要求展开,构思通过“连续且相互独立的有机体”序列和叠加予以实现,并在其间梳理布置必要的功能分区和流线组织。
四、建筑方案设计
1、建筑方案推演过程
科普馆建筑设计推演图

2、建筑总平面布局
因该地块狭长不规则且存在一定的高差,常规的单体建筑与场地空间会产生较大矛盾,故本方案用多个相对独立的空间组合来实现场地的优化利用。
设计灵感源于大熊猫本身,整体由多个圆形的功能空间组合而成,实现虚实结合、大小不一的几何空间,连续的空间交叉使得各功能区域既独立又彼此关联。
科普馆建筑平面图

3、建筑方案设计
大熊猫科普馆的设计构思以“突出主题、融于自然、强化特色、优化功能”为原则,以谦卑的态度将建筑植入生态环境中,顺应地形高差的错落布局使得建筑立面有了比较丰富的层次关系,周边的山、水、林、竹等生态自然环境将整个建筑环抱其中。
科普馆建筑设计图
总平面中连续的圆形布局创造了丰富的立面形式,极简的几何造型搭配精细的外墙面肌理和青砖、灰瓦等,将地域特征、主题概念和环境氛围融合表达,整体以黑白为主色,加入实木、绿植等生态色彩元素,综合营造符合项目气质的环境氛围,质朴而细腻。
科普馆建筑设计图

为了突出生态性特点,设计营造了更多的室外展示空间。弧形围墙通过投影、雕塑、浮雕、绘画、铁艺剪影等手法形成展示面,这些而丰富的室外空间还能满足业主不定期举办展览活动的需求。
科普馆建筑设计图

科普馆室内外虚实空间的交叉融合,构筑了丰富的空间和展览层次。
科普馆建筑设计图

将科普馆前往大熊猫野外驯化基地的游步道设计成为具有观赏休憩功能的科普长廊,长廊造型与科普馆的圆弧设计形成反差,使用更具现代感的几何线条作为主设计语言,犹如塑造了一段“酷炫”历程。
科普馆科普长廊设计图

五、内部装修和布展设计
1、内装布展平面布局
科普馆是观赏大熊猫的前置教育,通过科普馆向游客介绍秦岭亚种大熊猫的相关基础知识,使游客更能深层次的认知国宝大熊猫以及相关背景,更具趣味性、保护性和互动性的参观真实的野外大熊猫。
科普馆内装展陈平面图

2、内装布展分析
.gif)
科普馆内装展陈分析图

3、内装布展设计
科普馆的室内设计围绕“秦岭亚种大熊猫”主题,基于黑白主色调,搭配更具本地属性和风格的装饰元素,既表达共性特征,又彰显秦岭味道。
科普馆内装展陈设计图




科普馆第二部分空间,特点是以数字影像、监控直播和情景再现,设计通过增加墨绿色作为识别,与第一部分空间建立差别。
大熊猫科普长廊突出趣味性和休憩与观景功能。
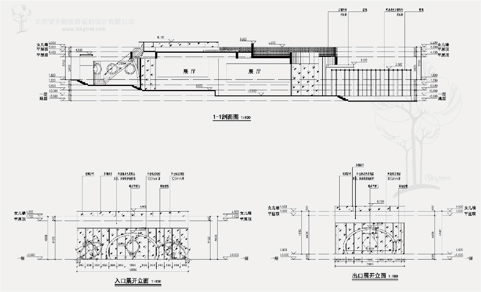
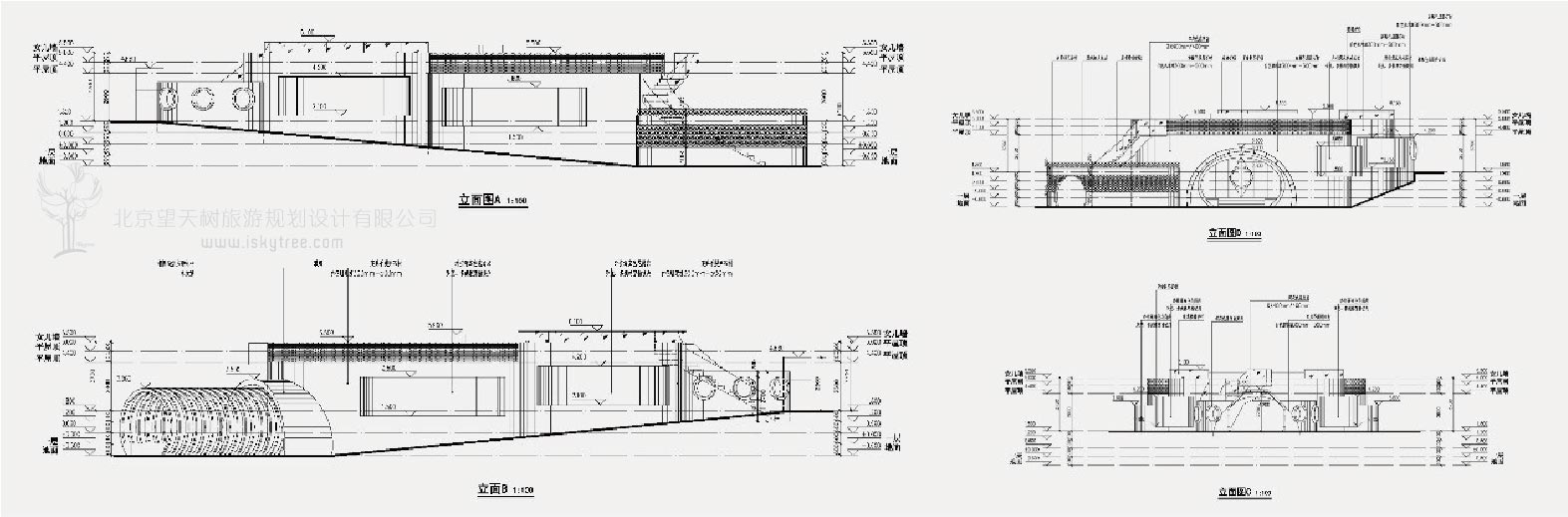
六、建筑设计技术图纸
.gif)
平面图
立面图
剖面图

七、大熊猫科普馆落地建成
科普馆入口实景照片
科普馆主体施工过程照片
科普馆内部实景照片
科普长廊实景照片
科普长廊细节实景照片

(望天树旅游规划设计原创,转载请注明出处)
版权所有 北京望天树旅游规划设计有限公司 Copyright © 备案号: 京ICP备18030669号-1
客服热线:010-80440988 电子邮箱:office@iskytree.com